Conix Conix Conix
Меню

Проект С - 443

ЗП:Conixtrade
РЗП:Sofia
Етажи:Warehouse, logistics
Спални:3 120 m2/33 583 ft2
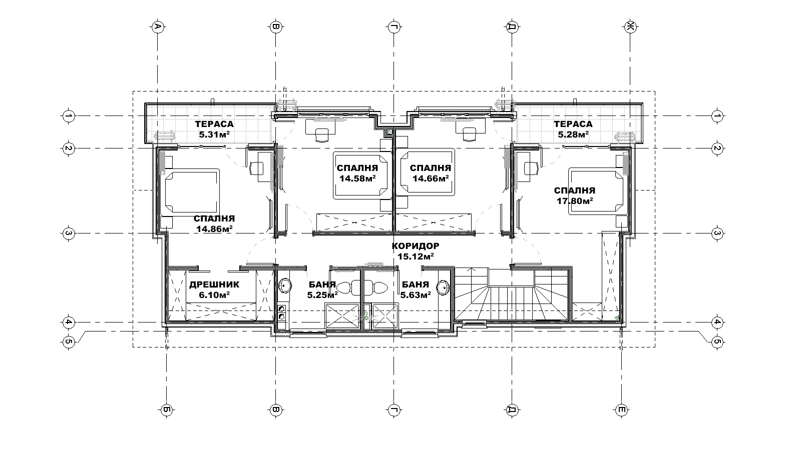
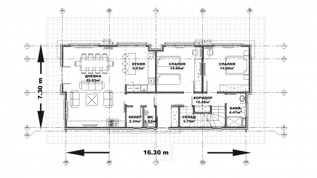
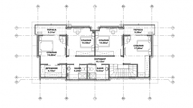
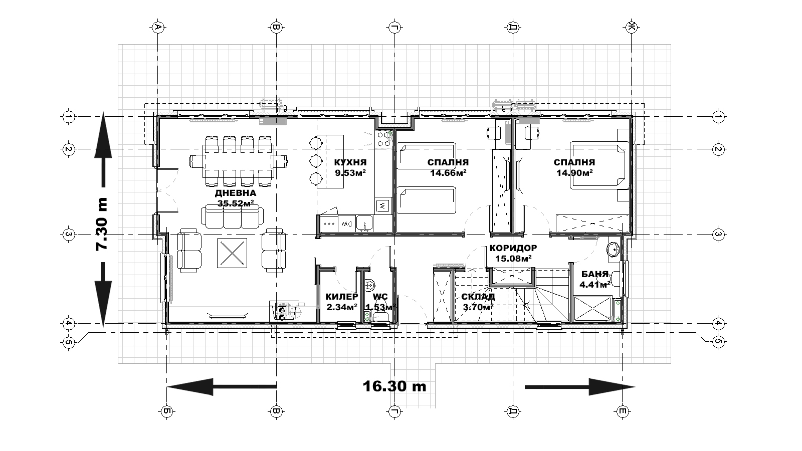
  • Застроена площ

    117 кв.м.

  • Разгъната застроена площ

    239 кв.м.

  • Етажи

    2

  • Стаи

    7

  • Бани

    4

  • Тип покрив

    Двускатен

Impressions

HUF house MODUM 6:10