Conix Conix Conix
Меню

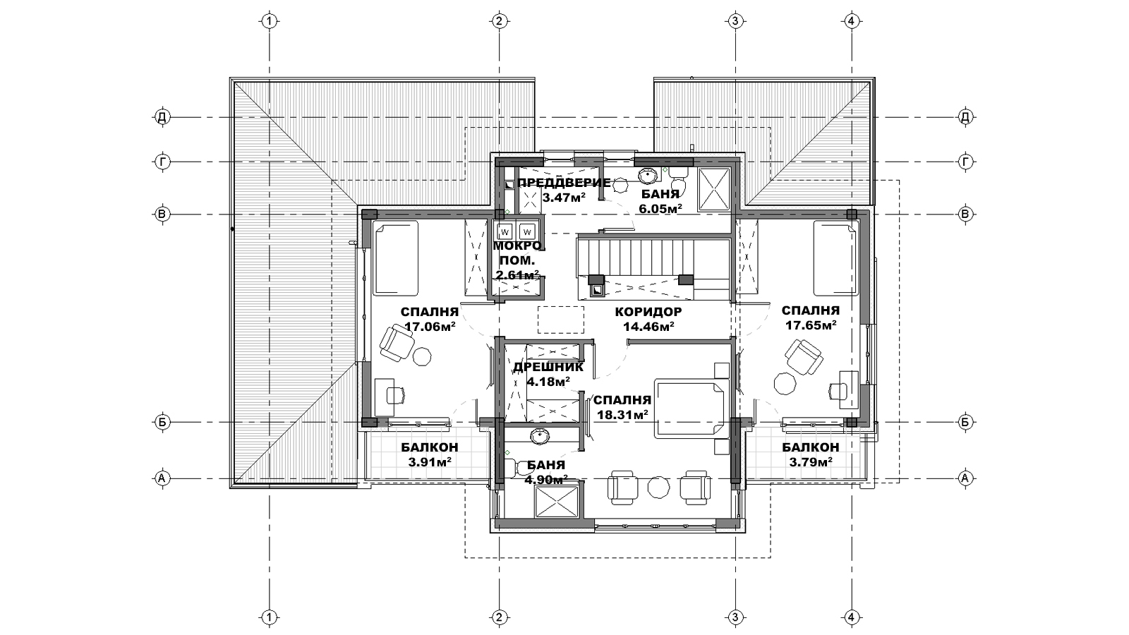
Проект С - 442

ЗП:Conixtrade
РЗП:Sofia
Етажи:Warehouse, logistics
Спални:3 120 m2/33 583 ft2
  • Застроена площ

    144 кв.м.

  • Разгъната застроена площ

    265 кв.м.

  • Етажи

    2

  • Стаи

    4

  • Бани

    3

  • Тип покрив

    Четирискатен

Impressions

HUF house MODUM 6:10