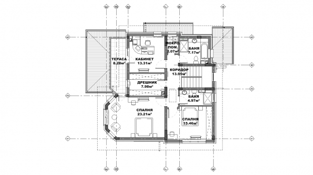
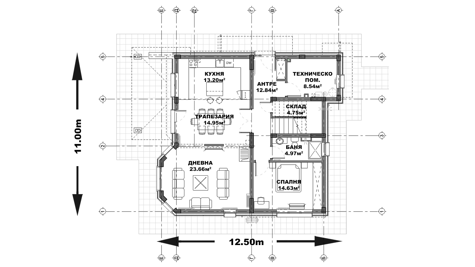
Проект С - 437 ЗП:ConixtradeРЗП:SofiaЕтажи:Warehouse, logisticsСпални:3 120 m2/33 583 ft2 Застроена площ 120 кв.м. Разгъната застроена площ 240 кв.м. Етажи 2 Стаи 5 Бани 3 Тип покрив Четирискатен Impressions HUF house MODUM 6:10