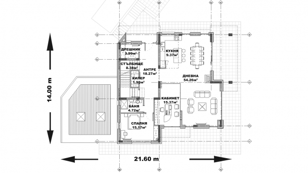
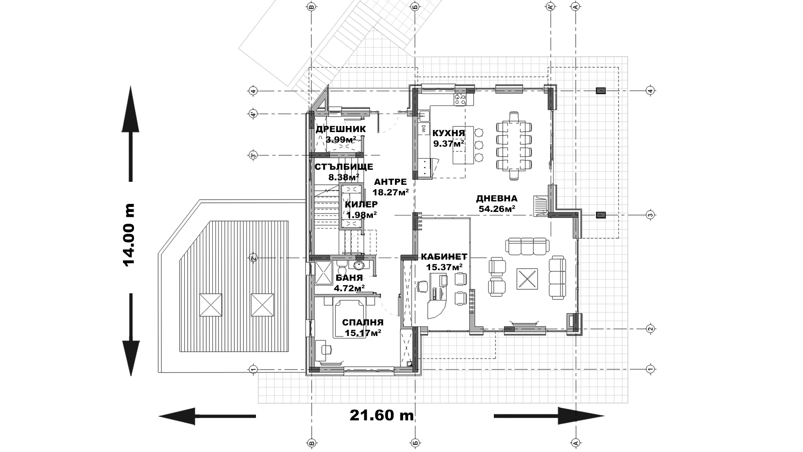
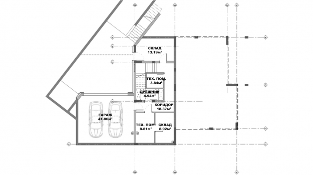
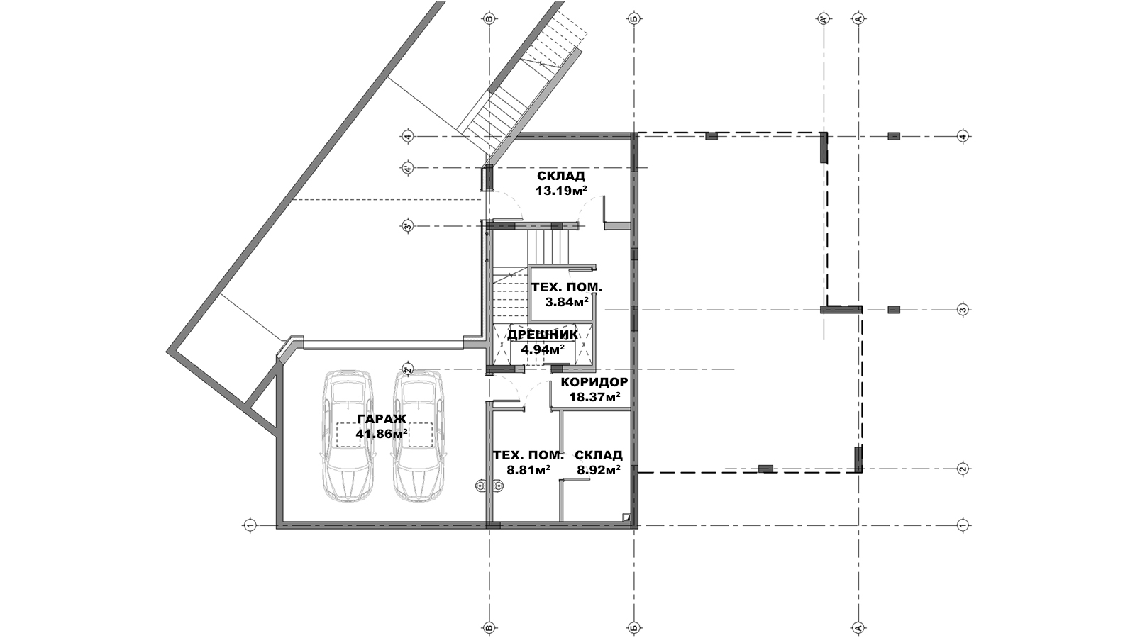
Проект С - 417 ЗП:ConixtradeРЗП:SofiaЕтажи:Warehouse, logisticsСпални:3 120 m2/33 583 ft2 Застроена площ 157 кв.м. Разгъната застроена площ 461 кв.м. Етажи 3 Стаи 6 Бани 3 Тип покрив Четирискатен Impressions HUF house MODUM 6:10