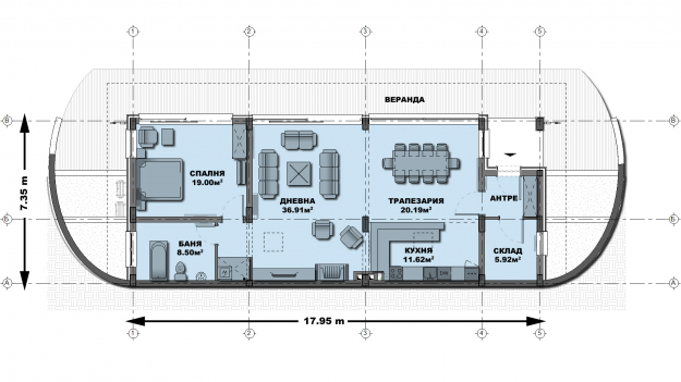
Проект С - 164 ЗП:ConixtradeРЗП:SofiaЕтажи:Warehouse, logisticsСпални:3 120 m2/33 583 ft2 Застроена площ 132 кв.м. Разгъната застроена площ 132 кв.м. Етажи 1 Стаи 2 Бани 1 Тип покрив Плосък Impressions HUF house MODUM 6:10