Conix Conix Conix
Меню

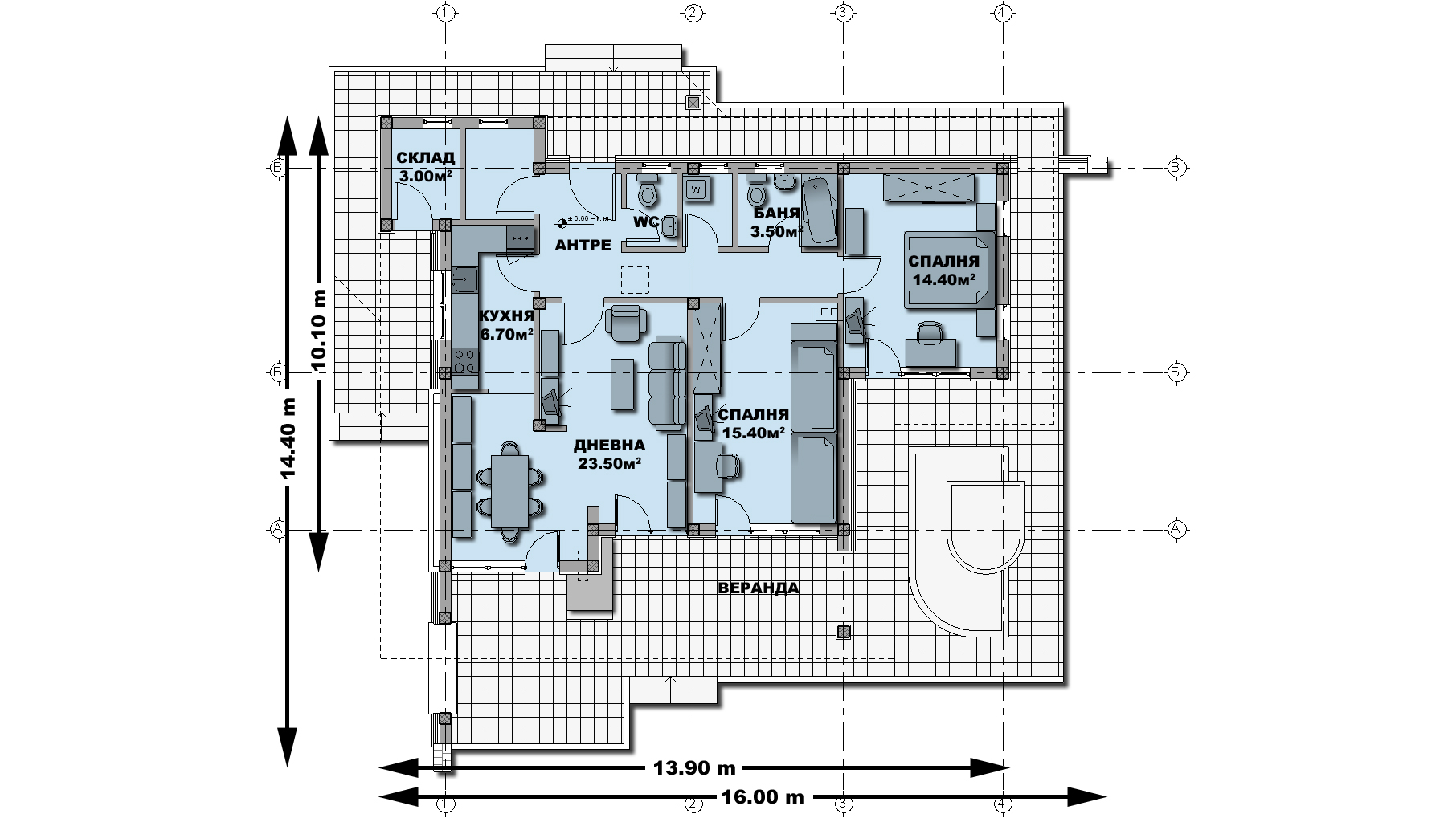
Проект С - 198

ЗП:Conixtrade
РЗП:Sofia
Етажи:Warehouse, logistics
Спални:3 120 m2/33 583 ft2
  • Застроена площ

    99 кв.м.

  • Разгъната застроена площ

    99 кв.м.

  • Етажи

    1

  • Стаи

    3

  • Бани

    2

  • Тип покрив

    Четирискатен

Impressions

HUF house MODUM 6:10